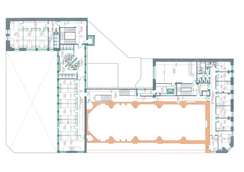
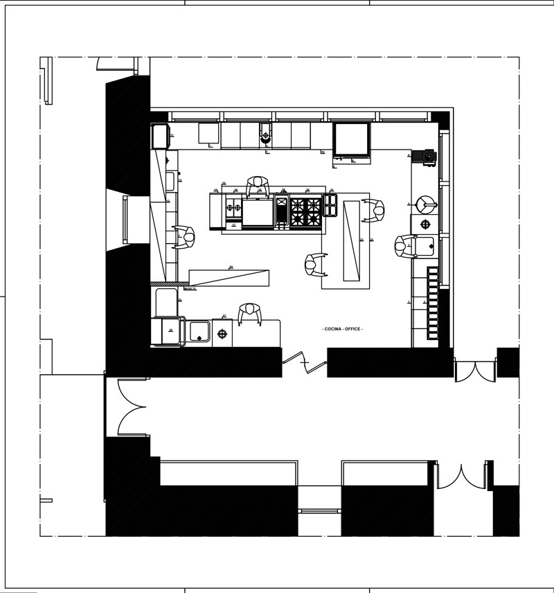
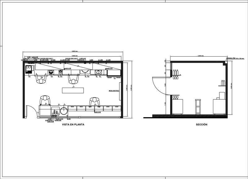
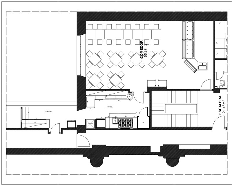
Convent Garden San Sebastián

Ir al contenido